Floorplans and Capacities

The right space for your event.

Discover flexible, scalable spaces designed to bring every meeting, conference, exhibition, and celebration to life. With three levels of adaptable rooms—from expansive halls to intimate breakout spaces—the Hamilton Convention Centre offers floorplans that work hard for planners and feel effortless for guests.

Level One

Wentworth Hall

At street level, Wentworth Hall offers up to 20,000 sq. ft. of reinforced floor space, ideal for large-scale events: exhibits, tradeshows, receptions, banquets, and high-capacity meetings.

A four-bay loading dock and a large freight elevator make move-in and move-out simple—including the ability to transport vehicles to upper levels. Access is streamlined via a direct ramp and a drive-through door.

  • Wentworth ABC & Concourse — 19,662 sq. ft.

  • Wentworth A — 6,102 sq. ft.

  • Wentworth B — 7,232 sq. ft.

  • Wentworth C — 6,338 sq. ft.

  • Wentworth AB — 13,334 sq. ft.

  • Wentworth BC — 13,560 sq. ft.

  • Production Office — ~465 sq. ft.

Capacities include: theatre 750–2250, classroom 238–728, banquet rounds up to 1,240, and up to 107 trade show booths depending on configuration.

Level Two

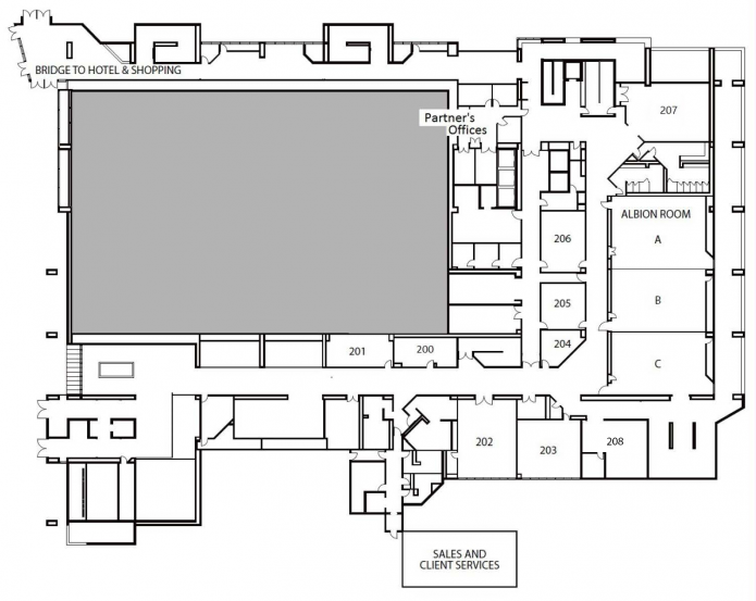
HCC Floorplans Second Floor

Albion room

A versatile 4,000 sq. ft. ballroom that divides into three fully independent sections, each with its own entrance. Ideal for concurrent programming, breakout clusters, and mid-size events.

Albion Floorplan Options
  • Albion ABC — 3,870 sq. ft.

  • Albion A — 1,462 sq. ft.

  • Albion B — 1,247 sq. ft.

  • Albion C — 1,161 sq. ft.

  • Albion AB / Albion BC — 2,408–2,709 sq. ft.

Breakout Rooms (200-208)

Level Two offers up to eleven meeting and breakout rooms, allowing planners to run workshops, executive meetings, training sessions, and speaker-ready spaces.

Highlights include:

  • Room 201 — overlooks Wentworth Hall with a picture window; perfect convention office or private meeting suite.

  • Rooms 200–208 — flexible spaces ranging from 420–945 sq. ft., supporting theatre, classroom, U-shape, hollow square, rounds, and booths.

Spacious Corridors

Corridors overlook the foyer —ideal for registration, receptions, sponsor activations, or networking lounges.

Level Three

Chedoke Ballroom

A dramatic, flexible hall offering nearly 20,000 sq. ft. on the third floor. Perfect for conferences, banquets, exhibits, and high-impact events.

Configuration options include:

  • Chedoke ABC & Foyer — 19,662 sq. ft.

  • Chedoke A — 6,102 sq. ft.

  • Chedoke B — 6,780 sq. ft.

  • Chedoke C — 6,780 sq. ft.

  • Chedoke AB — 12,882 sq. ft.

  • Chedoke BC — 13,560 sq. ft.

Capacities range from 750–2,160 theatre, 238–736 classroom, 400–1,280 rounds, and up to 111 trade show booths.

Webster Room and Lounge

A collection of stylish meeting spaces with an adjoining lounge—ideal for mid-sized sessions, receptions, or leadership off-sites.

  • Webster ABC & Lounge — 4,620 sq. ft.

  • Webster A, B, C — 1,485–1,595 sq. ft.

  • Webster AB / Webster BC — 3,080–3,135 sq. ft.

Additional Meeting Rooms

  • Room 314 — 1,330 sq. ft.

  • Room 318 — 1,349 sq. ft.

Both rooms support theatre, classroom, boardroom, and hollow square setups.

Ready to take your event to the next level?

Starting Sept 8, garage access via Summers Lane is closed. Use King Street to enter.